Church Street, Seal, TN15 0AR
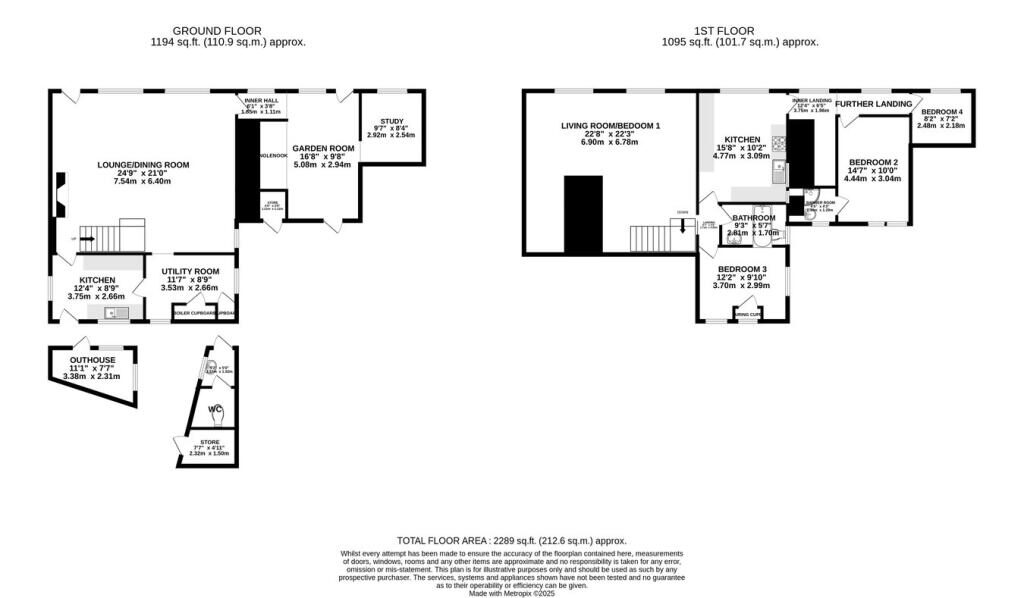
Excellent opportunity to own a sizeable historic landmark in the charming village of Seal. Special and spacious, this magnificent 16th Century Grade II listed period building offers 4/5 bedrooms and approaches 2300sqft. This character property is one of Seal's most precious links with the past, and enjoys a wealth of period features including inglenook fireplaces, exposed oak beams and rooms with vaulted ceilings. The accommodation is extensive, unique and well proportioned, and the property further benefits from a courtyard style garden. NO CHAIN.
Listed by
John Kingston Estate Agents
Disclaimer: Property descriptions, images, and related information displayed on this page are aggregated from publicly available sources across the web and presented for informational purposes only. While we strive for accuracy, home.co.uk cannot guarantee that all details are current or complete. This information is provided as a guide only and should not replace professional property advice. We strongly recommend contacting John Kingston Estate Agents directly to verify availability, arrange viewings, and obtain comprehensive property documentation.
Added 02 Mar 2026
Sevenoaks
54
Properties
6
Years
91%
Response
Get move ready. Fee-Free mortgage advice to help you secure your dream home
Fee-Free Mortgage AdviceCompare fibre, cable and 5G speeds from all major providers in TN15 0AR. Check before you move
Check Broadband SpeedsEnter your details to see if this property is within your budget.
Loans, cards, car finance
Estimated property budget
Borrowing + deposit
You could borrow between
Typical borrowing
Monthly repayment
Est. at 4.5%
Loan-to-value
This is an estimate only. Your actual budget may vary depending on interest rates, credit history, and personal circumstances. For an accurate affordability assessment, speak to one of our free mortgage advisors.
This calculator provides estimates for illustrative purposes only and does not constitute financial advice. Your home may be repossessed if you do not keep up repayments on your mortgage. Estimates based on 4.5% interest rate, repayment mortgage. Actual rates depend on your circumstances.





Homemove is a trading name of HM Haus Group Ltd (Company No. 13873779, registered in England & Wales). Homemove Mortgages Ltd (Company No. 15947693) is an Appointed Representative of TMG Direct Limited, trading as TMG Mortgage Network, which is authorised and regulated by the Financial Conduct Authority (FRN 786245). Homemove Mortgages Ltd is entered on the FCA Register as an Appointed Representative (FRN 1022429). You can check registrations at NewRegister or by calling 0800 111 6768.