Washdyke Lane, Lincoln, LN2 2PX
Three Residential Building Plots with Detailed Planning Permission – Nettleham, Lincoln
An excellent and unique opportunity to acquire three residential building plots in the highly sought after village of Nettleham, just north of Lincoln. The site benefits from detailed planning permission (Ref: 146424, granted 9 October 2024) for the erection of three dwellings.
This attractive development opportunity offers buyers or developers the chance to create three individual homes in one of Lincolnshire’s most desirable villages, well known for its strong community feel, excellent amenities and easy access to Lincoln.
The plots are positioned within an established residential setting and offer scope for thoughtfully designed homes that will complement the surrounding area. This secluded location is accessed via a private driveway.
Extensive research and surveys carried out by the vendor, which are available by request.
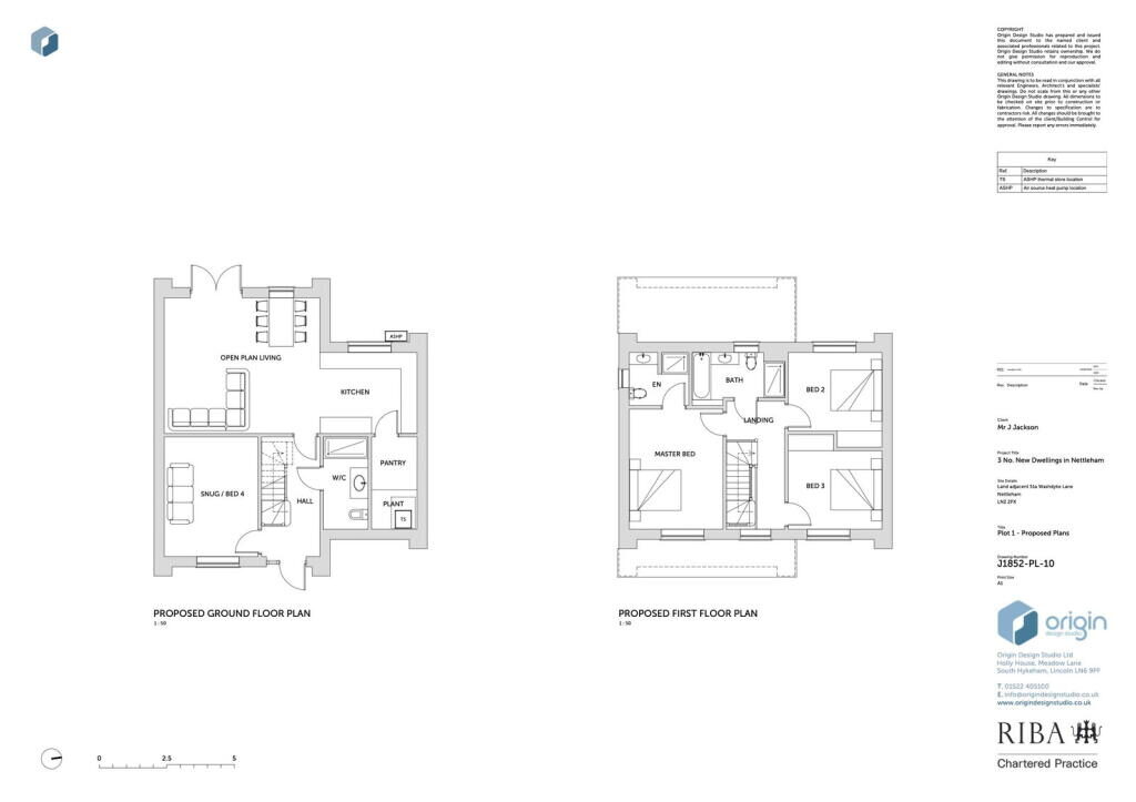
Plot 1
Detailed planning consent allows for the construction of a contemprary detached family home extending to approximately 140m² (1,507 sq ft) of internal accommodation, together with a detached garage and three off-road parking spaces.
The approved design provides a modern and highly functional layout including a large open plan kitchen, dining and living space opening onto the rear garden, a separate snug / fourth bedroom, pantry, cloakroom and plant room to the ground floor. The first floor offers three further bedrooms including a principal bedroom with en-suite, alongside a family bathroom.
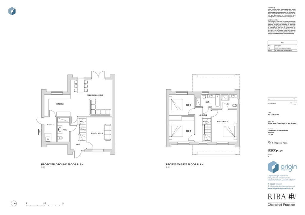
Plot 2
Detailed planning consent for the construction of a contemporary detached family home extending to approximately 140m² (1,507 sq ft), offering spacious and versatile accommodation designed with modern living in mind.
The approved plans show a welcoming entrance hallway leading to a flexible snug or fourth bedroom, ideal as a home office, playroom or guest accommodation. The rear of the property forms the heart of the home with a superb open-plan kitchen, dining and living area, designed to maximise natural light and provide direct access onto the garden.
Additional ground floor features include a utility room, cloakroom/WC and plant/storage space, offering practicality for everyday family living.
To the first floor, the layout provides three well-proportioned bedrooms, including a principal bedroom with en-suite shower room, while the remaining bedrooms are served by a contemporary family bathroom arranged off a central landing.
Externally, the property will benefit from off-road parking and a private rear garden.
Plot 3
Detailed planning consent for the construction of a contemporary five bedroom detached family home extending to approximately 174m² (1,873 sq ft).
The plot occupies a generous position with surrounding mature landscaping and enjoys a peaceful setting just off Washdyke Lane in the highly sought-after village of Nettleham.
The approved plans allow for the construction of an impressive detached home designed around modern family living. The ground floor centres around a superb open plan kitchen, dining and living space with doors opening onto the rear garden, creating a fantastic entertaining and family area.
Additional ground floor accommodation includes a separate office, ideal for home working, a snug / fifth bedroom, utility room, cloakroom/WC and plant room, providing excellent flexibility and practicality for family life.
To the first floor, the layout provides four further bedrooms, including a generous principal bedroom with en-suite shower room, while the remaining bedrooms are served by a well-appointed family bathroom arranged off a central landing.
Externally, the property will benefit from private parking and a garden area, positioned within a carefully planned development surrounded by established trees and neighbouring homes.
Location, Location, Location
Nettleham is a sought after village which has an excellent range of shops, public houses, opticians, a doctor's surgery, library, community hub and coffee and tea rooms. There is a infant, junior school and Secondary schooling is located in the neighbouring village of Welton (approximately 4 miles).
Nettleham offers convenient commuting into the historic city of Lincoln (approximately 4 miles), as well as access further afield via the A46 north to Grimsby (approximately 34 miles) or south to Newark (approximately 21 miles) which offers a direct rail link to London (Kings Cross from 80 minutes). The A15 north is situated approximately 14 miles away which gives access to Scunthorpe and the M180.
TENURE – Freehold.
AGENTS NOTE - Please be advised that the property details may be subject to change and must not be relied upon as an accurate description of this home. Although these details are thought to be materially correct, the accuracy cannot be guaranteed, and they do not form part of any contract. All services and appliances must be considered 'untested' and a buyer should ensure their appointed solicitor collates any relevant information or service/warranty documentation. Please note, all dimensions are approximate/maximums and should not be relied upon for the purposes of floor coverings.
ANTI-MONEY LAUNDERING REGULATIONS - We are required by law to conduct Anti-Money Laundering (AML) checks on all parties involved in the sale or purchase of a property. We take the responsibility of this seriously in line with HMRC guidance in ensuring the accuracy and continuous monitoring of these checks. Our partner, Movebutler, will carry out the initial checks on our behalf. They will contact you once your offer has been accepted, to conclude where possible a biometric check with you electronically.
As an applicant, you will be charged a non-refundable fee of £30 (inclusive of VAT) per buyer for these checks. The fee covers data collection, manual checking, and monitoring. You will need to pay this amount directly to Movebutler and complete all Anti-Money Laundering (AML) checks before your offer can be formally accepted.
This is a rare opportunity to secure residential building plots in a prime village location, ideal for developers, builders or individuals looking to build bespoke homes.
Viewings strictly by appointment only. Please call us quoting the full property address.
Listed by
Becketts Independent Estate Agents, Powered by Exp
Disclaimer: Property descriptions, images, and related information displayed on this page are aggregated from publicly available sources across the web and presented for informational purposes only. While we strive for accuracy, home.co.uk cannot guarantee that all details are current or complete. This information is provided as a guide only and should not replace professional property advice. We strongly recommend contacting Becketts Independent Estate Agents, Powered by Exp directly to verify availability, arrange viewings, and obtain comprehensive property documentation.
Added 06 Mar 2026
Lincoln
28
Properties
Get move ready. Fee-Free mortgage advice to help you secure your dream home
Fee-Free Mortgage AdviceCompare fibre, cable and 5G speeds from all major providers in LN2 2PX. Check before you move
Check Broadband SpeedsEnter your details to see if this property is within your budget.
Loans, cards, car finance
Estimated property budget
Borrowing + deposit
You could borrow between
Typical borrowing
Monthly repayment
Est. at 4.5%
Loan-to-value
This is an estimate only. Your actual budget may vary depending on interest rates, credit history, and personal circumstances. For an accurate affordability assessment, speak to one of our free mortgage advisors.
This calculator provides estimates for illustrative purposes only and does not constitute financial advice. Your home may be repossessed if you do not keep up repayments on your mortgage. Estimates based on 4.5% interest rate, repayment mortgage. Actual rates depend on your circumstances.





Homemove is a trading name of HM Haus Group Ltd (Company No. 13873779, registered in England & Wales). Homemove Mortgages Ltd (Company No. 15947693) is an Appointed Representative of TMG Direct Limited, trading as TMG Mortgage Network, which is authorised and regulated by the Financial Conduct Authority (FRN 786245). Homemove Mortgages Ltd is entered on the FCA Register as an Appointed Representative (FRN 1022429). You can check registrations at NewRegister or by calling 0800 111 6768.