4 Bedroom Detached House

Wenlock Way, Daventry, NN11 2HB

£315,000
4 beds · 2 baths · 105m² New · Added 16 Mar 2026

What this property offers

4 Bedrooms
2 Bathrooms
105 m² floor area
Detached House
B
EPC Rating B

About this property

*** 4 BEDROOM 3 STOREY SEMI DETACHED HOME *** JUST OVER 2 YEARS OLD AND IN AS NEW CONDITION *** BEAUTIFULLY PRESENTED THROUGHOUT *** POPULAR MONKSMOOR DEVELOPMENT CLOSE TO OPEN COUNTRYSIDE *** 2 SIDE BY SIDE ALLOCATED PARKING SPACES *** OVERLOOKING PUBLIC OPEN SPACE TO FRONT *** END OF QUIET PRIVATE DRIVE *** CONTACT GRAHAM DAVIDSON TO ARRANGE TO VIEW ***

Stunning Four-Bedroom Townhouse on the desirable Monksmoor Park development

Situated in a prime position on the highly regarded ‘Monksmoor Park’ estate, this beautifully presented four-bedroom semi-detached townhouse offers an exceptional balance of versatile living space across three floors. Boasting a superior finish and a tranquil location, early viewing is strongly recommended.

The Property
Built to a high specification, this contemporary home is perfectly designed for modern family life. The interior is defined by bright, open-plan spaces and a flexible layout that can adapt to a growing family's needs.

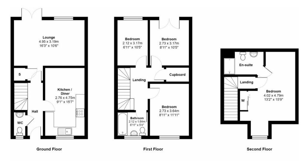
Ground Floor
The journey begins in a welcoming Entrance Hallway with a practical Downstairs WC and essential under-stairs storage.

• Kitchen/Diner (15'7" x 9'1"): To the front, this impressive heart of the home is fitted with a modern range of integrated appliances, providing a stylish and functional space for everyday dining and entertaining.

• Lounge (16'3" x 10'6"): Spanning the full width of the rear, this comfortable living area features French doors that open directly onto the garden, seamlessly blending indoor and outdoor living.

First Floor
The first floor hosts three well-proportioned bedrooms and a contemporary Family Bathroom (6'11" x 5'5").

• Bedroom Two (11'11" x 8'11") and Bedroom Three (10'5" x 8'11") are both generous doubles.

• Bedroom Four (10'5" x 6'11") offers flexibility as a nursery, guest room, or a dedicated home office for those working from home.

Second Floor Principal Suite
Occupying the entire top floor for ultimate privacy is the Spacious Principal Bedroom (15'9" x 13'2"). This stunning retreat features fitted wardrobes and its own private En-Suite Shower Room, creating a quiet sanctuary away from the main hub of the home.

Outside
The property is fronted by two side-by-side off-road parking spaces, offering excellent convenience. To the rear, the fully enclosed landscaped garden provides a secure and private outdoor space for children to play or for hosting guests.

ROOM SIZES

GROUND FLOOR
Entrance Hall Not Measured
Downstairs WC Not Measured
Kitchen/Diner 15'7" x 9'1" (4.75m x 2.77m)
Lounge 16'3" x 10'6" (4.95m x 3.2m)

FIRST FLOOR
Bedroom Two 11'11" x 8'11" (3.63m x 2.72m)
Bedroom Three 10'5" x 8'11" (3.18m x 2.72m)
Bedroom Four 10'5" x 6'11" (3.18m x 2.1m)
Family Bathroom 6'11" x 5'5" (2.1m x 1.65m)

SECOND FLOOR
Bedroom One 15'9" x 13'2" (4.8m x 4.01m)
En Suite Not Measured

EXTERNAL
Two Side By Side Parking Spaces to Front
Fully Enclosed Rear Garden

THE LOCATION

Monksmoor Park is a vibrant, garden-inspired community on the edge of Daventry.

• Green Spaces: Residents enjoy over 25 acres of landscaped parkland, nature trails, and direct access to the Grand Union Canal and Daventry Country Park.

• Amenities: The estate features a dedicated Primary School (Monksmoor Park CE), village greens, and local play areas.

ABOUT DAVENTRY
Daventry town centre is also within easy reach, providing a choice of entertainment options.

Daventry is a small quiet market town in western Northamptonshire, close to the border with Warwickshire. There is a bi-weekly market along the High Street on a Tuesday and Friday, several independent shops, cafes, and coffee shops along with major retailers, leisure facilities include the Leisure Centre, Daventry Country Park, and a recently built multi-screen ARC cinema.

This lovely area is also a convenient location for commuting, being close to all major road networks including the A45, A361 and the A5, motorway connections include the M1 and M40 both of which are approximately 20 minutes away. The nearest railway station is a Long Buckby which is about 15 minutes away and offers direct routes to Birmingham, Northampton, and London Euston, in less than one hour!

To view this property, contact the selling agent Graham Davidson at Chelton Brown Daventry office.

Estate Management Charge
As with the vast majority of modern housing developments, homes on Monksmoor pay an annual estate management charge which is in the region of £360 per annum. Ask for more information.

Nearby Properties

Listed by

Chelton Brown

View full profile

Disclaimer: Property descriptions, images, and related information displayed on this page are aggregated from publicly available sources across the web and presented for informational purposes only. While we strive for accuracy, home.co.uk cannot guarantee that all details are current or complete. This information is provided as a guide only and should not replace professional property advice. We strongly recommend contacting Chelton Brown directly to verify availability, arrange viewings, and obtain comprehensive property documentation.

ITV News TV Appearance The Times Featured AI Tech Company The Guardian - Homemove Insert Feature
Terms of use Privacy policy All rights reserved © homemove.com

Homemove is a trading name of HM Haus Group Ltd (Company No. 13873779, registered in England & Wales). Homemove Mortgages Ltd (Company No. 15947693) is an Appointed Representative of TMG Direct Limited, trading as TMG Mortgage Network, which is authorised and regulated by the Financial Conduct Authority (FRN 786245). Homemove Mortgages Ltd is entered on the FCA Register as an Appointed Representative (FRN 1022429). You can check registrations at NewRegister or by calling 0800 111 6768.