Llandysul, SA44 5XD
Imagine waking up… opening the doors… and hearing nothing but birds and the gentle sound of water nearby.
Tucked away in a peaceful countryside setting, this is more than just a cottage, it is a complete change of pace. Offering the rare combination of a beautifully renovated two bedroom cottage alongside a detached one bedroom former smithy, this is a property designed for flexible living, privacy and a slower way of life.
The Main Cottage
Step inside and you are immediately drawn to the heart of the home, a spacious open plan living, kitchen and dining area, where vaulted ceilings, exposed beams and a log burner create a warm and inviting space.
The kitchen is centred around a generous island, making it as practical as it is social, while stable doors to both the front and rear enhance the cottage feel and create a natural connection to the outdoors.
A useful utility space is positioned within the hallway, providing practical day to day storage and laundry space without impacting the main living area.
The layout offers two bedrooms, including a versatile second room currently used as a bedroom but equally suited as a sunroom, with direct access to the garden through double doors.
The property has undergone a comprehensive renovation, taken back to stone and thoughtfully rebuilt to combine modern comfort with its original character. Works include full rewiring, insulation upgrades, a new roof, new windows and updated heating systems, allowing you to enjoy the charm of a period cottage without the usual compromises.
The Annexe – “The Smithy”
What truly sets this home apart is the detached annexe.
Originally the village blacksmith’s cottage, The Smithy has been thoughtfully converted into a self contained one bedroom space, full of character and charm.
The open plan living area features exposed beams and a log burner, creating a warm and inviting atmosphere, alongside a kitchen area, shower room and mezzanine bedroom. The annexe benefits from its own private access and its own enclosed garden with seating area and a unique drop down hatch within the fence allows you to sit and enjoy views directly over the water.
While still connecting to the main garden, offering both independence and flexibility.
It offers excellent flexibility for:
It is not just additional space, it is a completely separate living environment.
The Garden & Setting
Step outside and the lifestyle continues.
The garden is a standout feature, thoughtfully designed as a series of spaces to explore and enjoy. From decking areas and seating spots around a fire pit, to a dedicated quiet garden, vegetable beds and a treehouse complete with slide and lookout, it offers something for every pace of life.
A large summer house with electric and generous decking provides additional space for relaxing or entertaining, while two sheds / workshops with power offer practical storage and hobby space.
A small pond is safely enclosed, and a stream runs along the boundary of the property, with ownership extending to the midpoint, creating a natural and peaceful backdrop.
To the rear, the property backs onto open land, ensuring it is not overlooked and enhancing the sense of privacy and connection to the surrounding countryside.
To the front, a generous gravelled area provides driveway parking for multiple vehicles.
Location & Heritage
Set at the end of a charming row of just five cottages, Cilgraig is steeped in local history. Originally built in 1860 to house workers from the nearby wool mill, these cottages form part of the village’s heritage, with the story even recorded in the local museum.
Alongside the main cottage sits the detached former blacksmith’s home, known as “The Smithy” once occupied by the village’s sole blacksmith, adding a second, rare layer of history to the property.
Located within the small village of Drefelin, tucked at the bottom of the valley, the setting offers a true sense of escape. Surrounded by rolling countryside and woodland, with virtually no passing traffic, it’s a place where life naturally slows down.
Despite its peaceful setting, everyday essentials are close by. A local Morrisons with Post Office is less than a 5 minute drive or around a 15 minute walk, with a traditional country pub also nearby, offering a welcoming setting and good food within easy reach.
For a wider range of amenities, the market town of Newcastle Emlyn is approximately 12 minutes away, providing a doctors surgery, chemist, supermarkets and a variety of independent shops, cafés and eateries.
Both Cardigan and Carmarthen are approximately 30 minutes away, providing a full range of shopping and dining.
For coastal days, some of West Wales’ most sought after beaches are within easy reach, including Aberporth (approx. 25 minutes) and New Quay (approx. 30 minutes).
This is a location that offers the best of both worlds, quiet, rural living with everything you need still within reach.
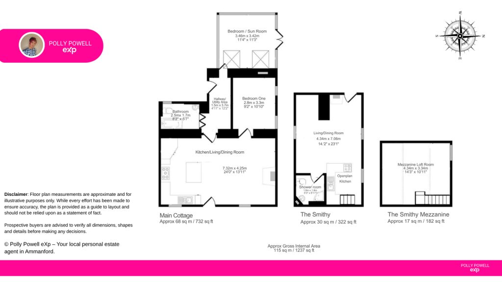
📐 ROOM MEASUREMENTS
Main Cottage
Kitchen / Living / Dining Room – 7.32m x 4.25m (24'0" x 13'11")
Bedroom One – 2.80m x 3.30m (9'2" x 10'10")
Bedroom Two / Sunroom – 3.46m x 3.42m (11'4" x 11'3")
Bathroom – 2.50m x 1.70m (8'2" x 5'7")
Hallway / Utility Area – 1.50m x 3.70m (4'11" x 12'2")
Annexe – The Smithy
Kitchen / Living / Dining Room – 4.34m x 7.06m (14'2" x 23'1")
Shower Room – 1.90m x 1.80m (6'3" x 5'11")
Mezzanine Bedroom – 4.34m x 3.34m (14'3" x 10'11") (limited head height)
EPC Ratings
The Cottage - E54
The Smithy - F23
Quote Reference: PP1432 When calling.
Listed by
Exp UK
Disclaimer: Property descriptions, images, and related information displayed on this page are aggregated from publicly available sources across the web and presented for informational purposes only. While we strive for accuracy, home.co.uk cannot guarantee that all details are current or complete. This information is provided as a guide only and should not replace professional property advice. We strongly recommend contacting Exp UK directly to verify availability, arrange viewings, and obtain comprehensive property documentation.
Added 25 Apr 2026
East Midlands
8914
Properties
Get move ready. Fee-Free mortgage advice to help you secure your dream home
Fee-Free Mortgage AdviceCompare fibre, cable and 5G speeds from all major providers in SA44 5XD. Check before you move
Check Broadband SpeedsEnter your details to see if this property is within your budget.
Loans, cards, car finance
Estimated property budget
Borrowing + deposit
You could borrow between
Typical borrowing
Monthly repayment
Est. at 4.5%
Loan-to-value
This is an estimate only. Your actual budget may vary depending on interest rates, credit history, and personal circumstances. For an accurate affordability assessment, speak to one of our free mortgage advisors.
This calculator provides estimates for illustrative purposes only and does not constitute financial advice. Your home may be repossessed if you do not keep up repayments on your mortgage. Estimates based on 4.5% interest rate, repayment mortgage. Actual rates depend on your circumstances.





Homemove is a trading name of HM Haus Group Ltd (Company No. 13873779, registered in England & Wales). Homemove Mortgages Ltd (Company No. 15947693) is an Appointed Representative of TMG Direct Limited, trading as TMG Mortgage Network, which is authorised and regulated by the Financial Conduct Authority (FRN 786245). Homemove Mortgages Ltd is entered on the FCA Register as an Appointed Representative (FRN 1022429). You can check registrations at NewRegister or by calling 0800 111 6768.