Beckermet, CA21 2XB
Seeking A Project That Truly Sparks Joy, And Not Just More DIY? This former pub in Beckermet offers a rare chance to create a spectacular 4/5 bedroom detached family home with planning already granted
If you've been searching for a significant conversion project that promises unique results, this could definitely be it. Imagine transforming this village landmark into a spacious, modern home, tailored precisely to your tastes, in a location that offers both village charm and quick access to stunning natural beauty.
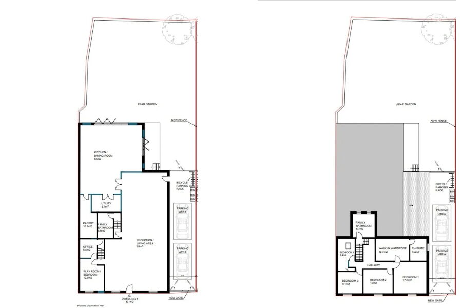
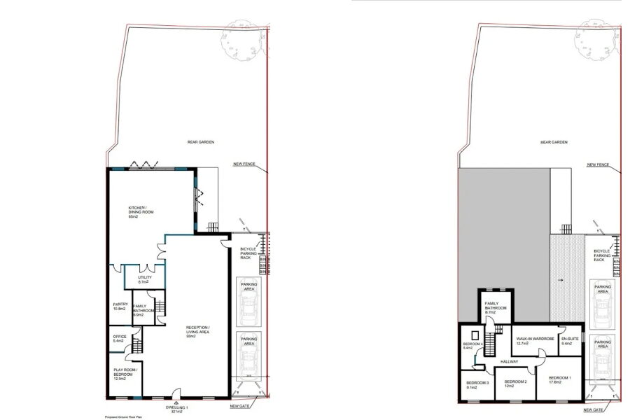
Currently, the property features two bar areas and a large dining room on the ground floor, alongside a living room, two double bedrooms, an additional room (ideal for a walk-in wardrobe or nursery), a kitchen, a bathroom, and a utility/store on the first floor. So there's plenty of space to get started!
But the real potential shines through with the approved planning permission. Picture a massive open-plan living kitchen at the rear, complete with bi-fold doors leading out to the garden. The ground floor could also feature a large living room, a family bathroom, a playroom or fifth bedroom, and a dedicated home office – perfect for modern family life.
Upstairs, the plans allow for a fantastic layout: four generously sized bedrooms, including one with an en-suite, and a stylish family bathroom, ensuring ample space and comfort for everyone.
Outside, the approved plans include a driveway for off-street parking and a good-sized garden, providing private outdoor space for relaxing or entertaining.
Beckermet itself is a popular village, known for its friendly atmosphere. The local primary school is just a five-minute walk away, making the morning routine a breeze. For those who love the great outdoors, you're spoiled for choice: the beach is less than a 10-minute drive, and the stunning shores of Wast Water in the Lake District are only about 25 minutes away.
This is more than just a renovation; it’s an opportunity to create an exceptional home, exactly as you envision it, in a sought-after village location. Projects like this don't come around often, so call today to explore the possibilities.
Auctioneer Comments:
This property is for sale by Modern Method of Auction allowing the buyer and seller to complete within a 56 Day Reservation Period. Interested parties’ personal data will be shared with the Auctioneer (iamsold Ltd).
If considering a mortgage, inspect and consider the property carefully with your lender before bidding. A Buyer Information Pack is provided. The buyer is responsible for the Pack fee. For the most recent information on the Buyer Information Pack fee, please contact the iamsold team.
The buyer signs a Reservation Agreement and makes payment of a NonRefundable Reservation Fee of 4.5% of the purchase price including VAT, subject to a minimum of £6,600 inc. VAT. This Fee is paid to reserve the property to the buyer during the Reservation Period and is paid in addition to the purchase price. The Fee is considered within calculations for stamp duty.
Services may be recommended by the Agent/Auctioneer in which they will receive payment from the service provider if the service is taken. Payment varies but will be no more than £960 inc. VAT. These services are optional.
Listed by
Mark Buchanan Property Group, Powered by Exp UK
Disclaimer: Property descriptions, images, and related information displayed on this page are aggregated from publicly available sources across the web and presented for informational purposes only. While we strive for accuracy, home.co.uk cannot guarantee that all details are current or complete. This information is provided as a guide only and should not replace professional property advice. We strongly recommend contacting Mark Buchanan Property Group, Powered by Exp UK directly to verify availability, arrange viewings, and obtain comprehensive property documentation.
Added 05 Mar 2026
Workington
199
Properties
Get move ready. Fee-Free mortgage advice to help you secure your dream home
Fee-Free Mortgage AdviceCompare fibre, cable and 5G speeds from all major providers in CA21 2XB. Check before you move
Check Broadband SpeedsEnter your details to see if this property is within your budget.
Loans, cards, car finance
Estimated property budget
Borrowing + deposit
You could borrow between
Typical borrowing
Monthly repayment
Est. at 4.5%
Loan-to-value
This is an estimate only. Your actual budget may vary depending on interest rates, credit history, and personal circumstances. For an accurate affordability assessment, speak to one of our free mortgage advisors.
This calculator provides estimates for illustrative purposes only and does not constitute financial advice. Your home may be repossessed if you do not keep up repayments on your mortgage. Estimates based on 4.5% interest rate, repayment mortgage. Actual rates depend on your circumstances.





Homemove is a trading name of HM Haus Group Ltd (Company No. 13873779, registered in England & Wales). Homemove Mortgages Ltd (Company No. 15947693) is an Appointed Representative of TMG Direct Limited, trading as TMG Mortgage Network, which is authorised and regulated by the Financial Conduct Authority (FRN 786245). Homemove Mortgages Ltd is entered on the FCA Register as an Appointed Representative (FRN 1022429). You can check registrations at NewRegister or by calling 0800 111 6768.