3 Bedroom Terraced House

Goffenton Drive, Bristol, BS16 2QA

£295,000
3 beds · 1 bath · 89m² SSTC · Added 23 Feb 2026

What this property offers

3 Bedrooms
1 Bathroom
89 m² floor area
Terraced House
D
EPC Rating D

About this property

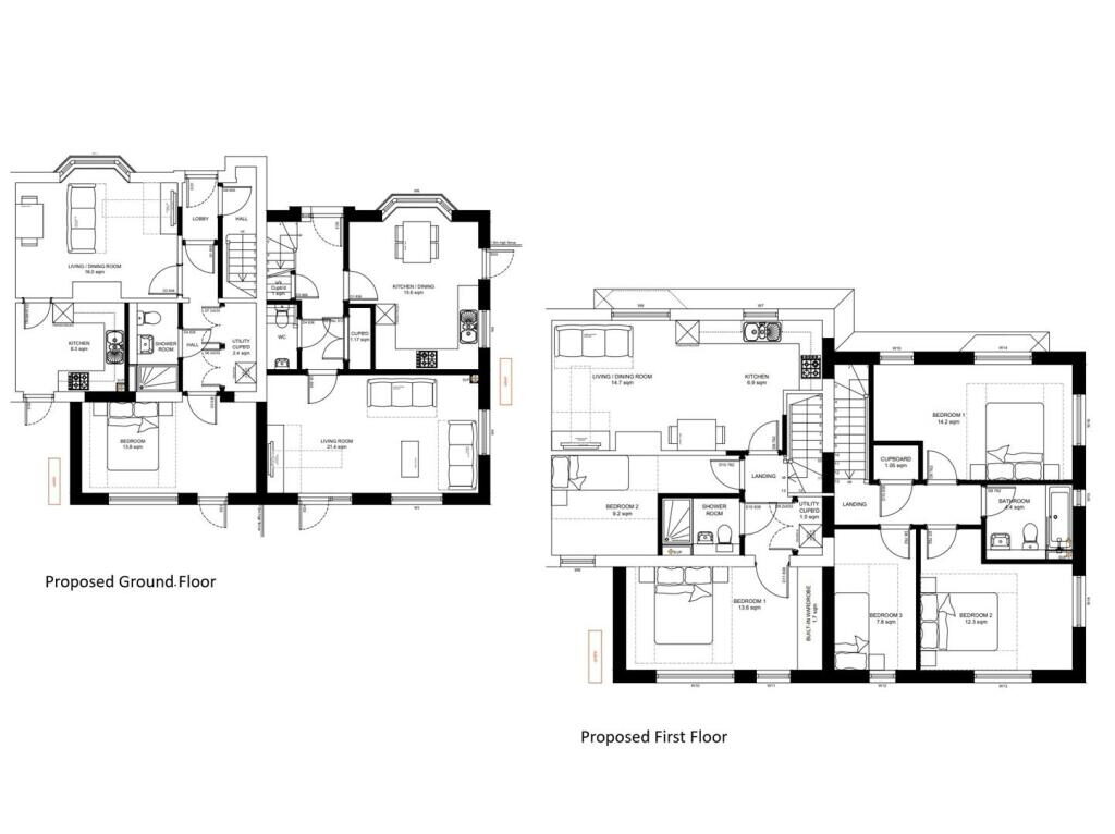
HOUSE & BUILDING PLOT - Planning for 2 Large Flats & New House

A three-bedroom end of terrace house occupying a substantial corner plot with full planning consent granted for the conversion/extension of the existing property to provide two large flats and the erection of a new 3-bedroom house to the side. The generous site will include parking and gardens to the front, side and rear.

A superb development opportunity with a GDV in the region of £790,000.

For Sale By Auction - This property is due to feature in our online auction on 19 March 2026 at 6.00pm. Bidding is via proxy, telephone or online remote bidding.

Viewings - By appointment.

Summary - DEVELOPMENT OPPORTUNITY – PLANNING PERMISSION GRANTED FOR TWO SELF-CONTAINED FLATS AND THE ERECTION OF A NEW 3-BEDROOM HOUSE

Description - An exciting development opportunity comprising an existing three-bedroom end-of-terrace house occupying a generous corner plot with full planning consent granted for the creation of three new dwellings (two large flats and a new three-bedroom house). The proposed accommodation will comprise:

- 1-Bedroom Garden Flat
- 2-Bedroom First Floor Flat
- 3-Bedroom House

The approved scheme allows for the conversion and extension of the existing property to create two spacious apartments along with the construction of a brand-new three-bedroom house to the side. The substantial plot will provide private parking and gardens to the front, side, and rear.

With a projected Gross Development Value in the region of £790,000, this is a superb opportunity for builders and developers in a prime residential location.

Location - Goffenton Drive is situated in a popular area of Fishponds, a family-friendly suburb of Bristol. Local amenities, such as, shops, cafes and bars can be found on the nearby Fishponds Road. A green space is just a short walk away at Oldbury Court Estate. The area also benefits from good schools and transport links, with easy access to the city centre and the A4174 Ring Road.

Planning - Full planning permission has been granted for the conversion of the existing house into two self-contained flats and the erection of an attached single dwelling house.

Planning Reference Number - 24/04754/F
Planning Granted - 22 January 2026
Local Authority - Bristol City Council

Gross Development Value (Gdv) - We anticipate the following resale values for the proposed dwellings:

1-Bedroom Garden Flat - £225,000
2-Bedroom First Floor Flat - £215,000
3-Bedroom House - £350,000

GDV: £790,000

Completion - Completion for this lot will be 8-weeks from exchange of contracts or sooner by mutual agreement.

Site Plan - The site plan is provided for indicative purposes only, please refer to the title plan within the legal pack for confirmation of the site boundaries.

Energy Performance Certificate (Epc) - Rating: D

Tenure - Understood to be freehold, please refer to the legal pack for confirmation.

Buyer's Premium - Please be advised that all purchasers are subject to a £1,800 plus VAT (£2,160 inc VAT) buyer’s premium payable upon exchange of contracts.

*Guide Price - Guide Prices are provided as an indication of each seller's minimum expectation. They are not necessarily figures which a property will sell for and may change at any time prior to the auction. Each property will be offered subject to Reserve Price (a figure below which the Auctioneer cannot sell the property during the auction) which we expect will be set within the Guide Range or no more than 10% above a single figure Guide.

Reserve Price - The seller's minimum acceptable price at auction and the figure below which the auctioneer cannot sell. The reserve price is not disclosed and remains confidential between the seller and the auctioneer. Both the guide price and the reserve price can be subject to change up to and including the day of the auction.

Proxy, Telephone & Online Remote Bidding - The auction will be held online via live video stream with buyers able to bid via telephone, online or by submitting a proxy bid. You will need to complete our remote bidding form, which is available to download from our website. The completed form, ID (driving licence or passport and a recent utility bill stating the home address of the purchaser) and a bank transfer for the Preliminary Deposit must be received no later than 24 hours before the date of the auction.

Preliminary Deposits - The Preliminary Deposit required for each lot you wish to bid for is £5,000.

If your bid is successful, the balance of the deposit monies and Buyer’s Premium (£1,800 plus VAT) must be transferred to our client account within 24 hours of the auction sale. If you are unsuccessful at the auction, your Preliminary Deposit will be returned to you within 5 working days.

Letting - What Can Maggs & Allen Achieve For You? - Maggs & Allen's experienced letting team are happy to discuss the rental of this property and can advise on maximising the investment. We offer Full Management, Let Only and Rent Collection Services. Contact Jessica Archer and her team on or email .

Auction Or Bridging Finance Required? - Do you need a mortgage or loan quickly? Maggs & Allen have specialist Independent Brokers who can arrange residential and commercial finance on all types of property. Contact the Auction Team today to be put through to our mortgage and loan experts on or email

Nearby Properties

Listed by

Maggs & Allen

View full profile

Disclaimer: Property descriptions, images, and related information displayed on this page are aggregated from publicly available sources across the web and presented for informational purposes only. While we strive for accuracy, home.co.uk cannot guarantee that all details are current or complete. This information is provided as a guide only and should not replace professional property advice. We strongly recommend contacting Maggs & Allen directly to verify availability, arrange viewings, and obtain comprehensive property documentation.

ITV News TV Appearance The Times Featured AI Tech Company The Guardian - Homemove Insert Feature
Terms of use Privacy policy All rights reserved © homemove.com

Homemove is a trading name of HM Haus Group Ltd (Company No. 13873779, registered in England & Wales). Homemove Mortgages Ltd (Company No. 15947693) is an Appointed Representative of TMG Direct Limited, trading as TMG Mortgage Network, which is authorised and regulated by the Financial Conduct Authority (FRN 786245). Homemove Mortgages Ltd is entered on the FCA Register as an Appointed Representative (FRN 1022429). You can check registrations at NewRegister or by calling 0800 111 6768.