Victoria Avenue, Worcester, WR5 1EE
The Property
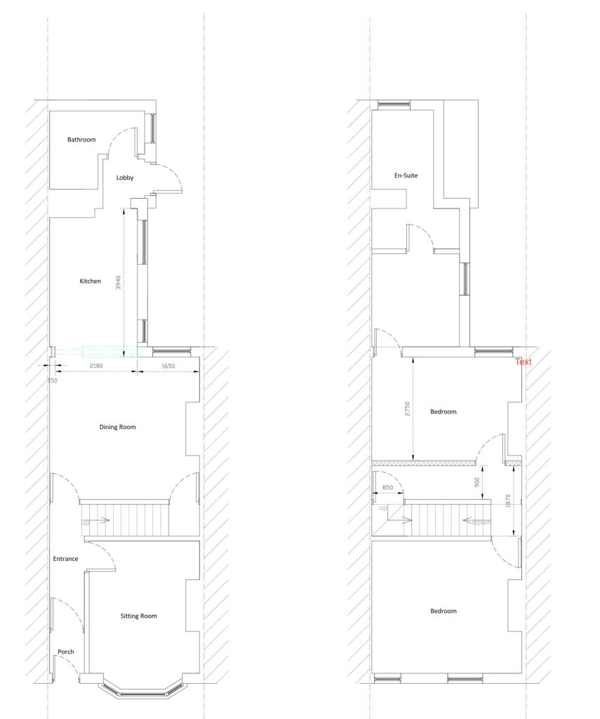
A great opportunity to purchase this period property with beautiful character features throughout, in a fantastic location near to Worcester city centre. The property has been recently redecorated and offers good sized living accommodation with two reception rooms. Upstairs there are two good sized bedrooms and a third bedroom which would also make an ideal dressing room or study.
The property in brief comprises; entrance hall, sitting room, dining room, fitted kitchen, downstairs shower room. To the first floor there are two bedrooms and a versatile third room which can be used as a bedroom/study or dressing room which leads to the main bathroom.
Outside to the rear there is an enclosed rear garden with seating area and lawned garden.
Planning Permission Granted for a Loft Conversion and Rear Dormer / Opening up the kitchen/reception room. Planning application number: 25/00273/HP
Services - Superfast, Ultrafast and Standard Broadband (For further information about broadband or mobile phone coverage we recommend checking Ofcom Checker.)
Mains electricity, water and drainage were laid on and connected at the time of our instruction.
Tenure - FREEHOLD
Council Tax band - B
EPC - C
DISCLAIMER- APPLIANCES SUCH AS RADIATORS, HEATERS, BOILERS, FIXTURES OR UTILITIES (GAS, WATER, ELECTRICITY) WHICH MAY HAVE BEEN MENTIONED IN THESE DETAILS HAVE NOT BEEN TESTED AND NO GUARANTEE CAN BE GIVEN THAT THEY ARE SUITABLE OR IN WORKING ORDER. WE CANNOT GUARANTEE THAT BUILDING REGULATIONS OR PLANNING PERMISSION HAS BEEN APPROVED AND WOULD RECOMMEND THAT PROSPECTIVE PURCHASERS SHOULD MAKE THEIR OWN INDEPENDENT ENQUIRIES ON THESE MATTERS. ALL MEASUREMENTS ARE APPROXIMATE.
Listed by
Emdot Property Consultants LTD
Disclaimer: Property descriptions, images, and related information displayed on this page are aggregated from publicly available sources across the web and presented for informational purposes only. While we strive for accuracy, home.co.uk cannot guarantee that all details are current or complete. This information is provided as a guide only and should not replace professional property advice. We strongly recommend contacting Emdot Property Consultants LTD directly to verify availability, arrange viewings, and obtain comprehensive property documentation.
Added 26 Feb 2026
Worcester
109
Properties
8
Years
99%
Response
Get move ready. Fee-Free mortgage advice to help you secure your dream home
Fee-Free Mortgage AdviceCompare fibre, cable and 5G speeds from all major providers in WR5 1EE. Check before you move
Check Broadband Speeds




Homemove is a trading name of HM Haus Group Ltd (Company No. 13873779, registered in England & Wales). Homemove Mortgages Ltd (Company No. 15947693) is an Appointed Representative of TMG Direct Limited, trading as TMG Mortgage Network, which is authorised and regulated by the Financial Conduct Authority (FRN 786245). Homemove Mortgages Ltd is entered on the FCA Register as an Appointed Representative (FRN 1022429). You can check registrations at NewRegister or by calling 0800 111 6768.