BN2 0JB
A well-located investment opportunity in Brighton, offering significant scope for value enhancement.
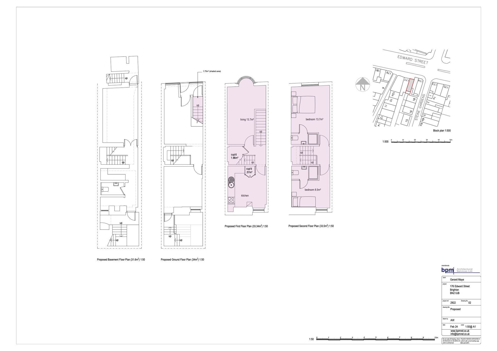
The property currently comprises a multi-storey dwelling with planning permission granted for reconfiguration and optimisation of the internal layout. The approved scheme provides for a more efficient residential arrangement across basement, ground, first and second floors, enhancing overall accommodation and end value.
The proposed plans indicate the creation of a modernised layout including open-plan living/kitchen space, multiple bedrooms and improved circulation, making the property well suited to either resale or rental investment.
Situated in a central Brighton location, the property benefits from strong underlying demand, with close proximity to local amenities, transport links and the seafront.
Listed by
Hw Estate Agents
Disclaimer: Property descriptions, images, and related information displayed on this page are aggregated from publicly available sources across the web and presented for informational purposes only. While we strive for accuracy, home.co.uk cannot guarantee that all details are current or complete. This information is provided as a guide only and should not replace professional property advice. We strongly recommend contacting Hw Estate Agents directly to verify availability, arrange viewings, and obtain comprehensive property documentation.
Added 14 Apr 2026
Hove
69
Properties
Get move ready. Fee-Free mortgage advice to help you secure your dream home
Fee-Free Mortgage AdviceCompare fibre, cable and 5G speeds from all major providers in BN2 0JB. Check before you move
Check Broadband SpeedsEnter your details to see if this property is within your budget.
Loans, cards, car finance
Estimated property budget
Borrowing + deposit
You could borrow between
Typical borrowing
Monthly repayment
Est. at 4.5%
Loan-to-value
This is an estimate only. Your actual budget may vary depending on interest rates, credit history, and personal circumstances. For an accurate affordability assessment, speak to one of our free mortgage advisors.
This calculator provides estimates for illustrative purposes only and does not constitute financial advice. Your home may be repossessed if you do not keep up repayments on your mortgage. Estimates based on 4.5% interest rate, repayment mortgage. Actual rates depend on your circumstances.





Homemove is a trading name of HM Haus Group Ltd (Company No. 13873779, registered in England & Wales). Homemove Mortgages Ltd (Company No. 15947693) is an Appointed Representative of TMG Direct Limited, trading as TMG Mortgage Network, which is authorised and regulated by the Financial Conduct Authority (FRN 786245). Homemove Mortgages Ltd is entered on the FCA Register as an Appointed Representative (FRN 1022429). You can check registrations at NewRegister or by calling 0800 111 6768.