IV30 4LF
The proposed development of 12 flats at Newfield House in Elgin presents a compelling investment opportunity, particularly given the current dynamics of the local housing market. Elgin is experiencing a significant shortage of rental properties, with demand far outstripping supply. This scarcity is driven by landlords opting to sell properties rather than rent them out, influenced by rising mortgage costs and regulatory challenges. Consequently, rental properties are highly sought after, often receiving multiple viewing requests shortly after being listed.
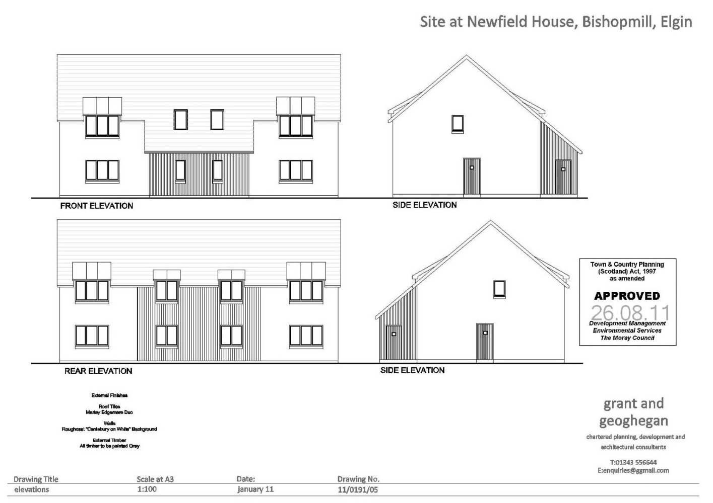
The planned flats at Newfield House are designed to meet this demand effectively. Each block will contain four flats, with two on the ground floor and two on the first floor, all featuring separate access. The flats will include an entrance hall, two bedrooms, a bathroom, and a kitchen/living area, making them attractive to a wide range of potential tenants and buyers. This type of property is in high demand, as evidenced by the rapid turnover of available rentals in the area.
Investors will find the Elgin housing market promising, as property prices have been on the rise and are expected to continue increasing due to ongoing development and regeneration projects in the town. The combination of a strong demand for rental properties and the upward trend in property values makes this development a strategic investment. Planning documents and related drawings for the project can be accessed online using references 09/02161/APP and 11/00233/APP.
Listed by
CCL Property
Disclaimer: Property descriptions, images, and related information displayed on this page are aggregated from publicly available sources across the web and presented for informational purposes only. While we strive for accuracy, home.co.uk cannot guarantee that all details are current or complete. This information is provided as a guide only and should not replace professional property advice. We strongly recommend contacting CCL Property directly to verify availability, arrange viewings, and obtain comprehensive property documentation.
Added 26 Jul 2018
135
Properties
9
Years
93%
Response
Get move ready. Fee-Free mortgage advice to help you secure your dream home
Fee-Free Mortgage AdviceCompare fibre, cable and 5G speeds from all major providers in IV30 4LF. Check before you move
Check Broadband SpeedsEnter your details to see if this property is within your budget.
Loans, cards, car finance
Estimated property budget
Borrowing + deposit
You could borrow between
Typical borrowing
Monthly repayment
Est. at 4.5%
Loan-to-value
This is an estimate only. Your actual budget may vary depending on interest rates, credit history, and personal circumstances. For an accurate affordability assessment, speak to one of our free mortgage advisors.
This calculator provides estimates for illustrative purposes only and does not constitute financial advice. Your home may be repossessed if you do not keep up repayments on your mortgage. Estimates based on 4.5% interest rate, repayment mortgage. Actual rates depend on your circumstances.





Homemove is a trading name of HM Haus Group Ltd (Company No. 13873779, registered in England & Wales). Homemove Mortgages Ltd (Company No. 15947693) is an Appointed Representative of TMG Direct Limited, trading as TMG Mortgage Network, which is authorised and regulated by the Financial Conduct Authority (FRN 786245). Homemove Mortgages Ltd is entered on the FCA Register as an Appointed Representative (FRN 1022429). You can check registrations at NewRegister or by calling 0800 111 6768.