Blackfriars Road, Salford, M3 7AQ
Studio 4, Blackfriars Road, provides stunning fully furnished contemporary office space within an iconic, fully renovated Victorian building.
The building accommodates four studios, occupied by Architects, Planning Consultants and Landscape Architects. Originally known as ‘Manchester Baths’, the building was restored and converted to offices in 2003 by OMI Architects, who are still based in the building, alongside other studios being occupied by Planning Consultants and Landscape Architects. The building is Grade II listed and received a Royal Institute of British Architects Award for design excellence. The interior is unmistakably contemporary yet retains many attractive features of the original Baths building, including double height spaces, exposed roof trusses, high levels of daylight from clerestory windows and polychromatic brickwork to the exterior walls.
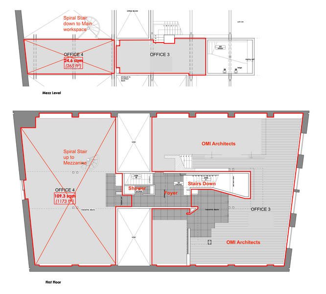
Studio 4 is on the first floor accessed off the main foyer and stairway. The accommodation offers “let ready” studio space and consists of an open plan office, with separate meeting room and office, and a mezzanine gallery above, accessed by a feature spiral staircase. There is a tea-prep area /kitchen with integrated fridge and storage. The studio is carpeted throughout and furnished with electronic rise and fall desking, storage shelving and casual seating. Cat 5 network and small power are installed and broadband connection is available within the suite
The building provides secure bike storage at ground level and shower facilities directly adjacent to Studio 4 at first floor level. Toilets are on the ground floor and include changing and disabled provision. The building benefits from 24-hour security and has CCTV / access control to each studio. Access to the building is available 24hs, 7 days/week. Heating is gas-fired low pressure hot water to wall mounted radiators. The boiler is exclusive to Studio 4. Natural ventilation is provided throughout with mechanical extract to the kitchenette area. The EPC rating is ‘B’.
The building is less than ten minutes’ walk to the extensive amenities offered by Deansgate in Manchester’s city centre. Metered on-street parking is available on Blackfriars Road and adjacent streets. There are also electric charge points on Blackfriars Road directly opposite the building.
The area has undergone significant regeneration in recent years, with a number of high profile apartment schemes being completed. The Greengate regeneration area, directly across from the building, is now well established with its attractive park and high street now in place. There are a number of cafes and eateries in the area including the Black Friar restaurant and bar.
Despite its City Centre location, the building is directly adjacent to Trinity Way, with easy access to routes in and out of town using the Mancunian Way A57(M) and the M602 motorway. Nearest train stations are Salford Central (10 minute walk) and Victoria (12 minute walk).
Listed by
Canning O'Neill
Disclaimer: Property descriptions, images, and related information displayed on this page are aggregated from publicly available sources across the web and presented for informational purposes only. While we strive for accuracy, home.co.uk cannot guarantee that all details are current or complete. This information is provided as a guide only and should not replace professional property advice. We strongly recommend contacting Canning O'Neill directly to verify availability, arrange viewings, and obtain comprehensive property documentation.
Added 09 Jul 2021
2
Properties
15
Years
96%
Response
Get move ready. Fee-Free mortgage advice to help you secure your dream home
Fee-Free Mortgage AdviceCompare fibre, cable and 5G speeds from all major providers in M3 7AQ. Check before you move
Check Broadband SpeedsEnter your details to see if this property is within your budget.
Loans, cards, car finance
Estimated property budget
Borrowing + deposit
You could borrow between
Typical borrowing
Monthly repayment
Est. at 4.5%
Loan-to-value
This is an estimate only. Your actual budget may vary depending on interest rates, credit history, and personal circumstances. For an accurate affordability assessment, speak to one of our free mortgage advisors.
This calculator provides estimates for illustrative purposes only and does not constitute financial advice. Your home may be repossessed if you do not keep up repayments on your mortgage. Estimates based on 4.5% interest rate, repayment mortgage. Actual rates depend on your circumstances.





Homemove is a trading name of HM Haus Group Ltd (Company No. 13873779, registered in England & Wales). Homemove Mortgages Ltd (Company No. 15947693) is an Appointed Representative of TMG Direct Limited, trading as TMG Mortgage Network, which is authorised and regulated by the Financial Conduct Authority (FRN 786245). Homemove Mortgages Ltd is entered on the FCA Register as an Appointed Representative (FRN 1022429). You can check registrations at NewRegister or by calling 0800 111 6768.