Ash Street, Semer, IP7 6QZ
Summary: Discreetly positioned in the heart of the Suffolk countryside, The Hollies is an individual detached bungalow built in 1987, set within grounds of approximately 2.2 acres. The property enjoys an enviable rural position on the edge of the sought-after parish of Semer, with commanding views across its own gardens and paddock towards the rolling farmland surrounding Whatfield. The house is cleverly set back within its plot, creating a sense of privacy and tranquility, while maximising the outlook to the south. With versatile accommodation of three/ four bedrooms and expansive gardens perfect for equestrian facilities or a small holding.
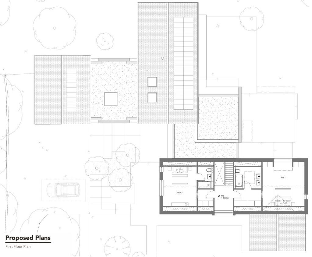
Planning Permission: The Hollies benefits from approved planning consent for significant enlargement into a modern and striking barn style property with vaulted kitchen windows and 5-bedrroms. Please refer to the last images in the listings for the approved layout and images. The Hollies offers both immediate comfort and considerable future potential.
Accommodation: The interior has been extensively updated by the current owners. At the centre of the home, the original kitchen and dining room have been opened into a single, free-flowing kitchen/breakfast/dining space. This light-filled area, now the hub of the house, combines contemporary finishes with practical design – ideal for both everyday living and entertaining. The kitchen and adjoining utility room have been fully refitted with modern cabinetry, integrated appliances, and quality work surfaces, while all bathrooms have been remodelled to a stylish, high specification.
The original central hallway has been reconfigured to provide additional accommodation in the form of a study or optional fourth bedroom, perfect for home working or guest use. A new oil-fired heating system has also been installed, ensuring reliable efficiency throughout the year.
The floor plan naturally divides the living and sleeping areas. Three well-proportioned double bedrooms are positioned to one side of the bungalow, while the reception spaces are arranged to the rear, overlooking the principal gardens. The sitting room is a particularly inviting space, with triple-aspect windows, an open fireplace, and French doors that frame far-reaching views over the grounds.
Gardens & Grounds:
The external setting of The Hollies is a true highlight. Formal gardens wrap around the property on all sides, incorporating expansive lawns, specimen trees, and a feature brick and flint wall along the western boundary, running parallel with the quiet country lane of Ash Street. A private driveway to the north provides ample parking and leads to a detached double garage, fitted with power and lighting.
To the south, the formal gardens give way to an established orchard and a level paddock of around 1.2 acres, well suited for equestrian use, small-scale grazing, or hobby farming. The land is accompanied by a block-built stable and an adjacent tack room/store, making the property ideal for those with countryside or equestrian interests.
Opportunities:
Beyond the existing layout, planning permission has been granted for a substantial extension and remodeling, offering the incoming buyer scope to create a significantly larger residence tailored to individual requirements (further details available on request).
Additional Information:
Local Area Guide:
Location & Setting
Semer is a small village and civil parish in the district of Babergh, Suffolk, in the East of England. It lies adjacent to a bridge over the River Brett on the B1115 road, between Hadleigh and Stowmarket. The parish includes the hamlets of Ash Street and Drakestone Green. With a population of around 130 as of 2011, Semer is very rural and tranquil.
History & Heritage
The name & settlement appear in historical records; its small size and riverside setting give it a long-standing agricultural character. Semer’s church, All Saints, is a focal point, set by the River Brett.
The rural lanes, hamlets and the river contribute to a heritage of small-scale farming, woodland, and pastoral landscape typical of this part of Suffolk.
Neighbouring Villages & Local Area
Amenities, Pubs & Dining
There are no pubs or shops within Semer village itself. A nearby café at Hollow Trees Farm offers farm-shop produce, café food and local fare. For more extensive dining or social amenities one travels to villages or towns like Hadleigh.
Schools & Education
Transport & Connectivity
Character & Appeal
Semer offers a rare combination of peace, natural beauty, and a sense of escaping to the countryside, while remaining relatively accessible to larger service towns. Its setting by the River Brett, scattered hamlets, quiet roads, farm shops and woodland make it ideal for those seeking rural retreat, privacy, and authenticity. Proximity to Hadleigh ensures that essentials aren’t too far away, but life in Semer runs on a slower, more pastoral pace.
Listed by
Luxpad, Powered by Exp UK
Disclaimer: Property descriptions, images, and related information displayed on this page are aggregated from publicly available sources across the web and presented for informational purposes only. While we strive for accuracy, home.co.uk cannot guarantee that all details are current or complete. This information is provided as a guide only and should not replace professional property advice. We strongly recommend contacting Luxpad, Powered by Exp UK directly to verify availability, arrange viewings, and obtain comprehensive property documentation.
Added 03 Oct 2025
Essex & Suffolk
30
Properties
Get move ready. Fee-Free mortgage advice to help you secure your dream home
Fee-Free Mortgage AdviceCompare fibre, cable and 5G speeds from all major providers in IP7 6QZ. Check before you move
Check Broadband SpeedsEnter your details to see if this property is within your budget.
Loans, cards, car finance
Estimated property budget
Borrowing + deposit
You could borrow between
Typical borrowing
Monthly repayment
Est. at 4.5%
Loan-to-value
This is an estimate only. Your actual budget may vary depending on interest rates, credit history, and personal circumstances. For an accurate affordability assessment, speak to one of our free mortgage advisors.
This calculator provides estimates for illustrative purposes only and does not constitute financial advice. Your home may be repossessed if you do not keep up repayments on your mortgage. Estimates based on 4.5% interest rate, repayment mortgage. Actual rates depend on your circumstances.





Homemove is a trading name of HM Haus Group Ltd (Company No. 13873779, registered in England & Wales). Homemove Mortgages Ltd (Company No. 15947693) is an Appointed Representative of TMG Direct Limited, trading as TMG Mortgage Network, which is authorised and regulated by the Financial Conduct Authority (FRN 786245). Homemove Mortgages Ltd is entered on the FCA Register as an Appointed Representative (FRN 1022429). You can check registrations at NewRegister or by calling 0800 111 6768.