Beacon View, Pontefract, WF9 3DA
Guide Price £400,000 - £425,000
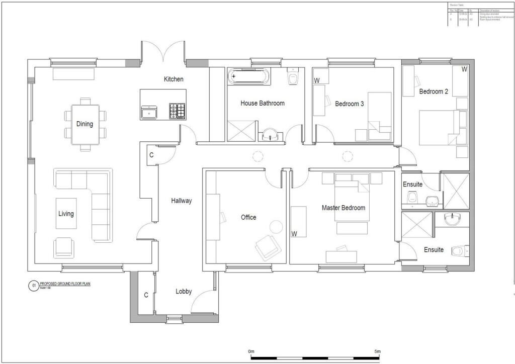
A RARE OPPORTUNITY! to acquire this SHOW-STOPPING, IMMACULATELY PRESENTED FOUR-BEDROOM DETACHED BUNGALOW in the sought-after village of South Kirkby. Set on a GENEROUS WRAP-AROUND PLOT, the home offers MODERN DESIGN, PRIVACY and SPACE, with BEAUTIFULLY MAINTAINED GARDENS surrounding three sides, a LANDSCAPED PATIO AREA for outdoor dining, and a LARGE DRIVEWAY providing AMPLE PARKING, CAR CHARGING POINT and EXTERIOR ELECTRIC SOCKET. Included is an architectural drawing with FULL PLANNING PERMISSION to ENCLOSE the PORCH, creating a GRAND ENTRANCE and BOOT ROOM, allowing buyers to further enhance this impressive property.
Inside, the entrance and hallway are flooded with light from VELUX SUN TUNNELS which guide you to the STYLISH L-SHAPED OPEN PLAN KITCHEN, DINING and LIVING AREA filled with natural light from the SLIDING DINING ROOM DOORS, and FRENCH DOORS from the kitchen opening onto the garden. The CONTEMPORARY KITCHEN features a GRANITE TOPPED ISLAND with a GLASS DOUBLE FLIP PLUG with USB PORTS BUILT IN and BRAND NEW INTEGRATED APPLIANCES
Located close to local shops, schools, cafés and leisure facilities, with easy access to the A1(M) and M62, this outstanding bungalow combines luxury, practicality, and accessibility
Listed by
Ruth Pitts Estate Agents, Powered by Exp
Disclaimer: Property descriptions, images, and related information displayed on this page are aggregated from publicly available sources across the web and presented for informational purposes only. While we strive for accuracy, home.co.uk cannot guarantee that all details are current or complete. This information is provided as a guide only and should not replace professional property advice. We strongly recommend contacting Ruth Pitts Estate Agents, Powered by Exp directly to verify availability, arrange viewings, and obtain comprehensive property documentation.
Added 05 Nov 2025
Pontefract
123
Properties
5
Years
85%
Response
Get move ready. Fee-Free mortgage advice to help you secure your dream home
Fee-Free Mortgage AdviceCompare fibre, cable and 5G speeds from all major providers in WF9 3DA. Check before you move
Check Broadband SpeedsEnter your details to see if this property is within your budget.
Loans, cards, car finance
Estimated property budget
Borrowing + deposit
You could borrow between
Typical borrowing
Monthly repayment
Est. at 4.5%
Loan-to-value
This is an estimate only. Your actual budget may vary depending on interest rates, credit history, and personal circumstances. For an accurate affordability assessment, speak to one of our free mortgage advisors.
This calculator provides estimates for illustrative purposes only and does not constitute financial advice. Your home may be repossessed if you do not keep up repayments on your mortgage. Estimates based on 4.5% interest rate, repayment mortgage. Actual rates depend on your circumstances.





Homemove is a trading name of HM Haus Group Ltd (Company No. 13873779, registered in England & Wales). Homemove Mortgages Ltd (Company No. 15947693) is an Appointed Representative of TMG Direct Limited, trading as TMG Mortgage Network, which is authorised and regulated by the Financial Conduct Authority (FRN 786245). Homemove Mortgages Ltd is entered on the FCA Register as an Appointed Representative (FRN 1022429). You can check registrations at NewRegister or by calling 0800 111 6768.