Commonside, Brownhills, WS8 7AX
***COMING SOON***ESTIMATED COMPLETION EARLY 2026***
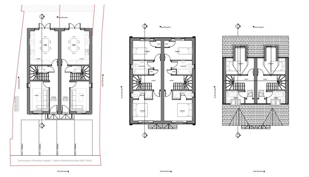
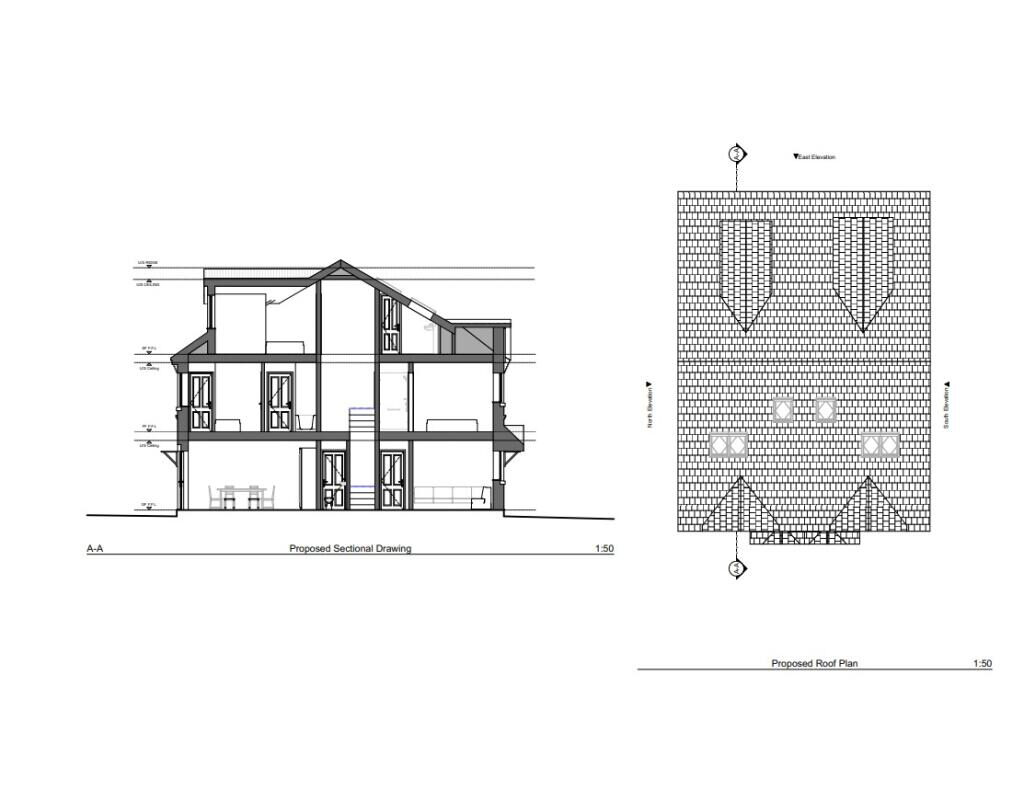
A development of two brand new modern three bedroom homes located on Commonside, Brownhills. Close to local schools and amenities, these homes have been carefully designed with families in mind.
Each property briefly comprises; hallway, lounge, kitchen/diner, downstairs w.c, three bedrooms with one having ensuite shower room, a family bathroom and further shower room and each benefit from off road parking, landscaped rear garden with brick built summer house and a detached storage garage.
EPC and Council tax band to be confirmed.
Contact us now to register your interest!!
We endeavour to make our sales particulars accurate and reliable, however, they do not constitute or form part of an offer or any contract and none is to be relied upon as statements of representation or fact. Any services, systems and appliances listed in this specification have not been tested by us and no guarantee as to their operating ability or efficiency is given. All measurements have been taken as a guide to prospective buyers only, and are not precise. If you require clarification or further information on any points, please contact us, especially if you are travelling some distance to view.
Successful buyers will be required to complete anti-money laundering checks. Thirdfort, will carry out the initial checks on our behalf. The non-refundable cost is £39 inc. VAT per buyer. You’ll need to pay this and complete all checks before we can issue a memorandum of sale.
Tenure: Freehold,Listed by
Goodchilds
Disclaimer: Property descriptions, images, and related information displayed on this page are aggregated from publicly available sources across the web and presented for informational purposes only. While we strive for accuracy, home.co.uk cannot guarantee that all details are current or complete. This information is provided as a guide only and should not replace professional property advice. We strongly recommend contacting Goodchilds directly to verify availability, arrange viewings, and obtain comprehensive property documentation.
Added 16 Oct 2025
Brownhills
30
Properties
3
Years
88%
Response
Get move ready. Fee-Free mortgage advice to help you secure your dream home
Fee-Free Mortgage AdviceCompare fibre, cable and 5G speeds from all major providers in WS8 7AX. Check before you move
Check Broadband Speeds




Homemove is a trading name of HM Haus Group Ltd (Company No. 13873779, registered in England & Wales). Homemove Mortgages Ltd (Company No. 15947693) is an Appointed Representative of TMG Direct Limited, trading as TMG Mortgage Network, which is authorised and regulated by the Financial Conduct Authority (FRN 786245). Homemove Mortgages Ltd is entered on the FCA Register as an Appointed Representative (FRN 1022429). You can check registrations at NewRegister or by calling 0800 111 6768.