Upper New Walk, Leicester, LE1 7QA
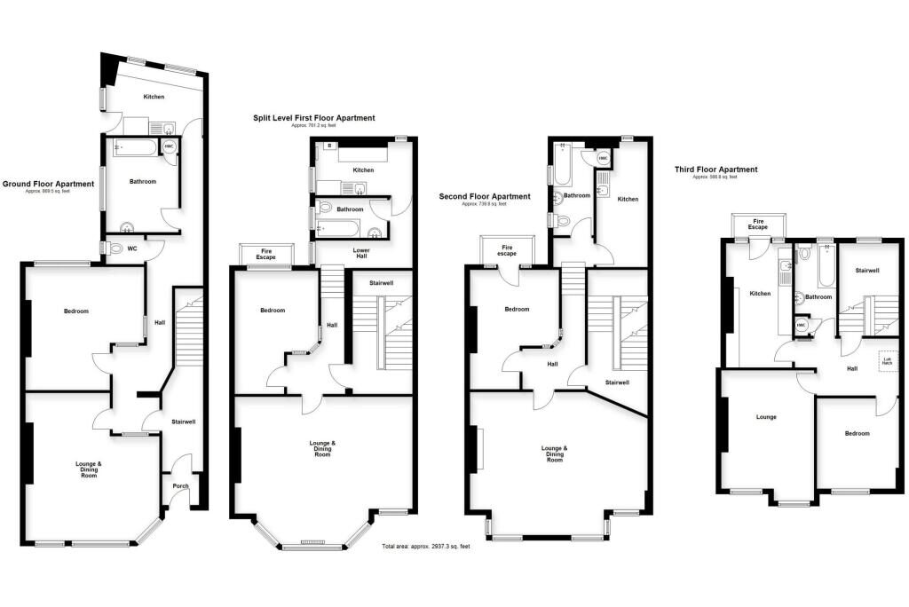
A substantial period dwelling and a fantastic buy to let opportunity, situated in without doubt one of the city's most highly regarded locations close to local amenities and shopping with Victoria Park and the university campus just a stones throw away. The accommodation, situated over four spacious levels with rear fire escape, includes a flat on each level - three of which are currently let (one of which is a protected tenancy) and the other recently vacant. There is huge scope for modernisation and re-configuring throughout to allow three of the four to convert from one to two-bedrooms. Viewings strictly via Moore & York.
Listed by
Moore & York
Disclaimer: Property descriptions, images, and related information displayed on this page are aggregated from publicly available sources across the web and presented for informational purposes only. While we strive for accuracy, home.co.uk cannot guarantee that all details are current or complete. This information is provided as a guide only and should not replace professional property advice. We strongly recommend contacting Moore & York directly to verify availability, arrange viewings, and obtain comprehensive property documentation.
Added 30 Jan 2026
Covering Leicestershire
154
Properties
Get move ready. Fee-Free mortgage advice to help you secure your dream home
Fee-Free Mortgage AdviceCompare fibre, cable and 5G speeds from all major providers in LE1 7QA. Check before you move
Check Broadband SpeedsEnter your details to see if this property is within your budget.
Loans, cards, car finance
Estimated property budget
Borrowing + deposit
You could borrow between
Typical borrowing
Monthly repayment
Est. at 4.5%
Loan-to-value
This is an estimate only. Your actual budget may vary depending on interest rates, credit history, and personal circumstances. For an accurate affordability assessment, speak to one of our free mortgage advisors.
This calculator provides estimates for illustrative purposes only and does not constitute financial advice. Your home may be repossessed if you do not keep up repayments on your mortgage. Estimates based on 4.5% interest rate, repayment mortgage. Actual rates depend on your circumstances.





Homemove is a trading name of HM Haus Group Ltd (Company No. 13873779, registered in England & Wales). Homemove Mortgages Ltd (Company No. 15947693) is an Appointed Representative of TMG Direct Limited, trading as TMG Mortgage Network, which is authorised and regulated by the Financial Conduct Authority (FRN 786245). Homemove Mortgages Ltd is entered on the FCA Register as an Appointed Representative (FRN 1022429). You can check registrations at NewRegister or by calling 0800 111 6768.