Gareth Close, Cardiff, CF14 9AF
Set in a quiet cul-de-sac in the popular area of Thornhill, this three-bedroom detached home offers a comfortable layout, good outdoor space, and plenty of potential to grow.
The property has off-street parking and a well-kept frontage. Inside, the main living space is a good-sized through lounge with French doors opening onto the garden, allowing in lots of natural light and making it easy to use the space for both everyday living and entertaining.
Upstairs, there are two large double bedrooms and a single bedroom, which would work well as a child’s room, guest room, or study. There is also a ground floor WC, which is always a useful addition.
The converted garage is a real highlight. It has been insulated, heated and soundproofed, making it ideal as a home office, studio or hobby space.
Outside, the wrap-around garden provides a nice amount of space to enjoy, whether that is for relaxing, gardening or spending time with family.
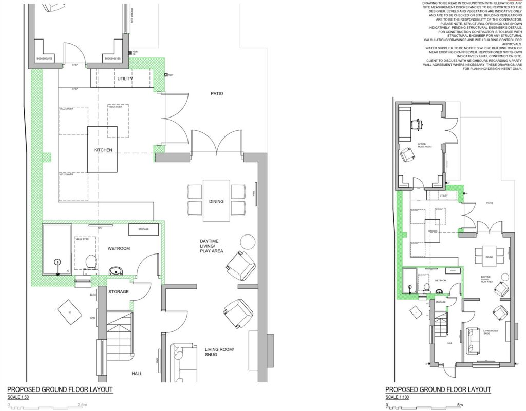
The house has been well maintained and improved by the current owners, but there is also clear scope to extend. Planning permission has already been granted for a large side return, giving the option to create a bigger kitchen diner, an extra reception area and a ground floor bathroom.
Lisvane and Thornhill Station is around a five-minute drive away, with direct trains to Cardiff city centre, Barry Island, Cardiff Airport and Caerphilly. The M4 and A48 are also easily accessible.
There are plenty of local amenities nearby, including supermarkets, pubs, restaurants, doctors and chemists. Llanishen and Lisvane offer a wider range of shops, cafés and services.
For outdoor space and leisure, there are several parks close by, along with tennis and golf clubs, all within easy reach.
Overall, this is a well-kept home in a good location, with flexible space and the option to extend in the future.
Listed by
Hambly Estates, Powered by Exp UK
Disclaimer: Property descriptions, images, and related information displayed on this page are aggregated from publicly available sources across the web and presented for informational purposes only. While we strive for accuracy, home.co.uk cannot guarantee that all details are current or complete. This information is provided as a guide only and should not replace professional property advice. We strongly recommend contacting Hambly Estates, Powered by Exp UK directly to verify availability, arrange viewings, and obtain comprehensive property documentation.
Added 10 Apr 2026
Covering South Wales
86
Properties
Get move ready. Fee-Free mortgage advice to help you secure your dream home
Fee-Free Mortgage AdviceCompare fibre, cable and 5G speeds from all major providers in CF14 9AF. Check before you move
Check Broadband SpeedsEnter your details to see if this property is within your budget.
Loans, cards, car finance
Estimated property budget
Borrowing + deposit
You could borrow between
Typical borrowing
Monthly repayment
Est. at 4.5%
Loan-to-value
This is an estimate only. Your actual budget may vary depending on interest rates, credit history, and personal circumstances. For an accurate affordability assessment, speak to one of our free mortgage advisors.
This calculator provides estimates for illustrative purposes only and does not constitute financial advice. Your home may be repossessed if you do not keep up repayments on your mortgage. Estimates based on 4.5% interest rate, repayment mortgage. Actual rates depend on your circumstances.





Homemove is a trading name of HM Haus Group Ltd (Company No. 13873779, registered in England & Wales). Homemove Mortgages Ltd (Company No. 15947693) is an Appointed Representative of TMG Direct Limited, trading as TMG Mortgage Network, which is authorised and regulated by the Financial Conduct Authority (FRN 786245). Homemove Mortgages Ltd is entered on the FCA Register as an Appointed Representative (FRN 1022429). You can check registrations at NewRegister or by calling 0800 111 6768.