Beckermet, CA21 2XB
DREAMING Of A Project That Promises Big Returns? This former accommodation of The Royal Oak, with eight en-suite bedrooms, presents a unique opportunity for either a thriving business venture or a stunning family home, perfectly positioned in the friendly village of Beckermet.
Whether you're an investor eyeing the lucrative contractor accommodation market near Sellafield or a visionary homeowner ready to craft a bespoke family residence, this property offers incredible potential. Imagine creating a space that truly reflects your vision, in a location that blends village charm with easy access to West Cumbria's largest employer, and the stunning Lake District National Park.
Currently configured with eight well-maintained en-suite bedrooms spread across two floors, this setup is perfect for those looking to provide ready-to-go accommodation. With Sellafield just a five-minute drive away, demand for contractor lodging is consistently high, making this a prime investment for immediate income generation.
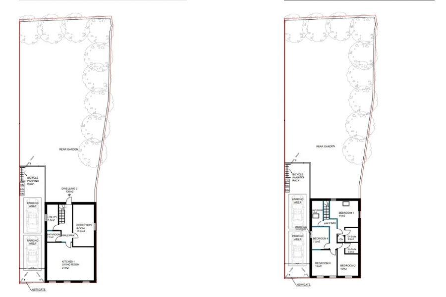
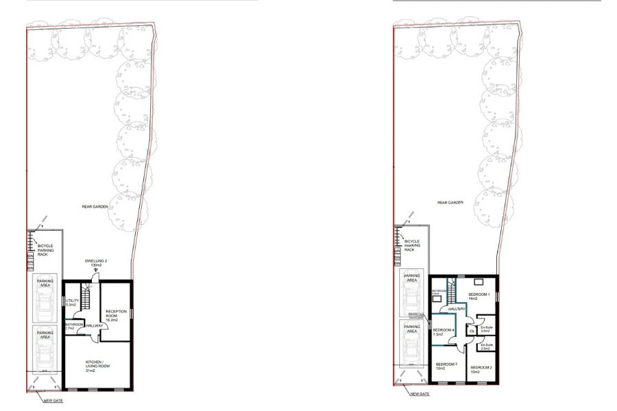
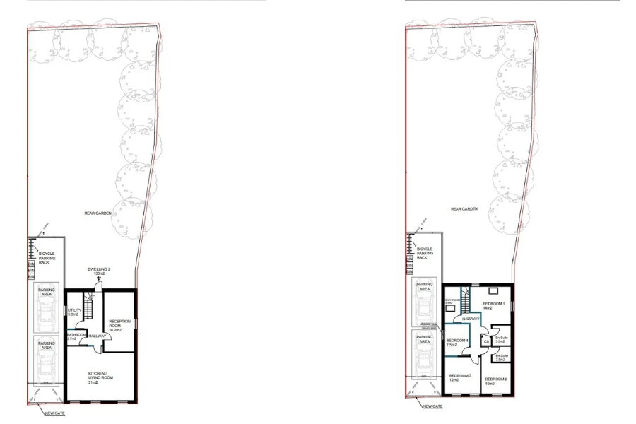
Alternatively, if transforming a space is more your style, granted planning permission offers a fantastic blueprint for a spacious 4/5-bedroom detached house. Envision an open-plan living, dining, and kitchen area at the front, creating a sociable hub for family life and entertaining. An additional reception room on the ground floor provides flexibility
Upstairs, the proposed layout features four comfortable bedrooms, two with their own en-suites, plus an additional family bathroom. Plenty of space for everyone to unwind after a busy day.
Outside, the plans include a driveway and a generously sized rear garden, offering ample space for both adults to relax and children to play. Think summer barbecues, quiet morning coffees, or simply enjoying your private outdoor sanctuary.
Beckermet is a popular and friendly village, known for its strong community spirit. The local primary school is just a five-minute walk, making school runs a breeze. For those who love the outdoors, you're spoiled for choice: the beach is under a 10-minute drive, and the breathtaking shores of Wastwater in the Lake District are only about 25 minutes away, perfect for weekend adventures.
This is more than just a property; it's a canvas for your ambitions, whether that's a shrewd investment or the creation of your dream family home in a quintessential Cumbrian village. The potential here is truly remarkable.
Ready to explore the possibilities? Contact us today to arrange a viewing!
Auctioneer Comments:
This property is for sale by Modern Method of Auction allowing the buyer and seller to complete within a 56 Day Reservation Period. Interested parties’ personal data will be shared with the Auctioneer (iamsold Ltd).
If considering a mortgage, inspect and consider the property carefully with your lender before bidding. A Buyer Information Pack is provided. The buyer is responsible for the Pack fee. For the most recent information on the Buyer Information Pack fee, please contact the iamsold team.
The buyer signs a Reservation Agreement and makes payment of a NonRefundable Reservation Fee of 4.5% of the purchase price including VAT, subject to a minimum of £6,600 inc. VAT. This Fee is paid to reserve the property to the buyer during the Reservation Period and is paid in addition to the purchase price. The Fee is considered within calculations for stamp duty.
Services may be recommended by the Agent/Auctioneer in which they will receive payment from the service provider if the service is taken. Payment varies but will be no more than £960 inc. VAT. These services are optional.
Listed by
Mark Buchanan Property Group, Powered by Exp UK
Disclaimer: Property descriptions, images, and related information displayed on this page are aggregated from publicly available sources across the web and presented for informational purposes only. While we strive for accuracy, home.co.uk cannot guarantee that all details are current or complete. This information is provided as a guide only and should not replace professional property advice. We strongly recommend contacting Mark Buchanan Property Group, Powered by Exp UK directly to verify availability, arrange viewings, and obtain comprehensive property documentation.
Added 05 Mar 2026
Workington
196
Properties
Get move ready. Fee-Free mortgage advice to help you secure your dream home
Fee-Free Mortgage AdviceCompare fibre, cable and 5G speeds from all major providers in CA21 2XB. Check before you move
Check Broadband SpeedsEnter your details to see if this property is within your budget.
Loans, cards, car finance
Estimated property budget
Borrowing + deposit
You could borrow between
Typical borrowing
Monthly repayment
Est. at 4.5%
Loan-to-value
This is an estimate only. Your actual budget may vary depending on interest rates, credit history, and personal circumstances. For an accurate affordability assessment, speak to one of our free mortgage advisors.
This calculator provides estimates for illustrative purposes only and does not constitute financial advice. Your home may be repossessed if you do not keep up repayments on your mortgage. Estimates based on 4.5% interest rate, repayment mortgage. Actual rates depend on your circumstances.





Homemove is a trading name of HM Haus Group Ltd (Company No. 13873779, registered in England & Wales). Homemove Mortgages Ltd (Company No. 15947693) is an Appointed Representative of TMG Direct Limited, trading as TMG Mortgage Network, which is authorised and regulated by the Financial Conduct Authority (FRN 786245). Homemove Mortgages Ltd is entered on the FCA Register as an Appointed Representative (FRN 1022429). You can check registrations at NewRegister or by calling 0800 111 6768.